0
Skip to Content
Our Projects
Toronto
North York
Scarborough
East York
Etobicoke
Durham
York
Peel
Contact Us
Our Services
Privacy Policy
GET A QUOTE
Open Menu
Close Menu
Our Projects
Toronto
North York
Scarborough
East York
Etobicoke
Durham
York
Peel
Contact Us
Our Services
Privacy Policy
GET A QUOTE
Open Menu
Close Menu
Folder:
Our Projects
Back
Toronto
North York
Scarborough
East York
Etobicoke
Durham
York
Peel
Contact Us
Our Services
Privacy Policy
GET A QUOTE
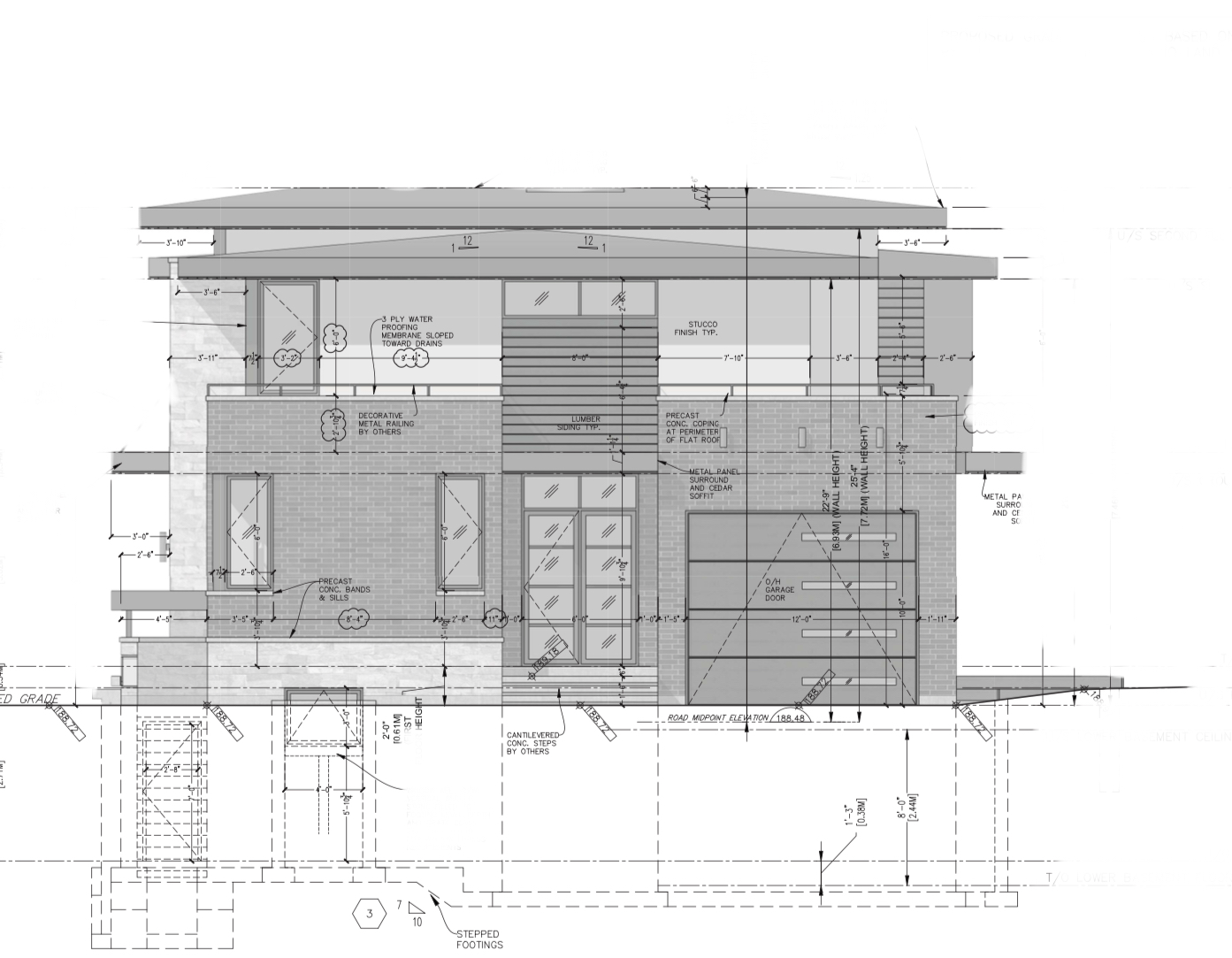
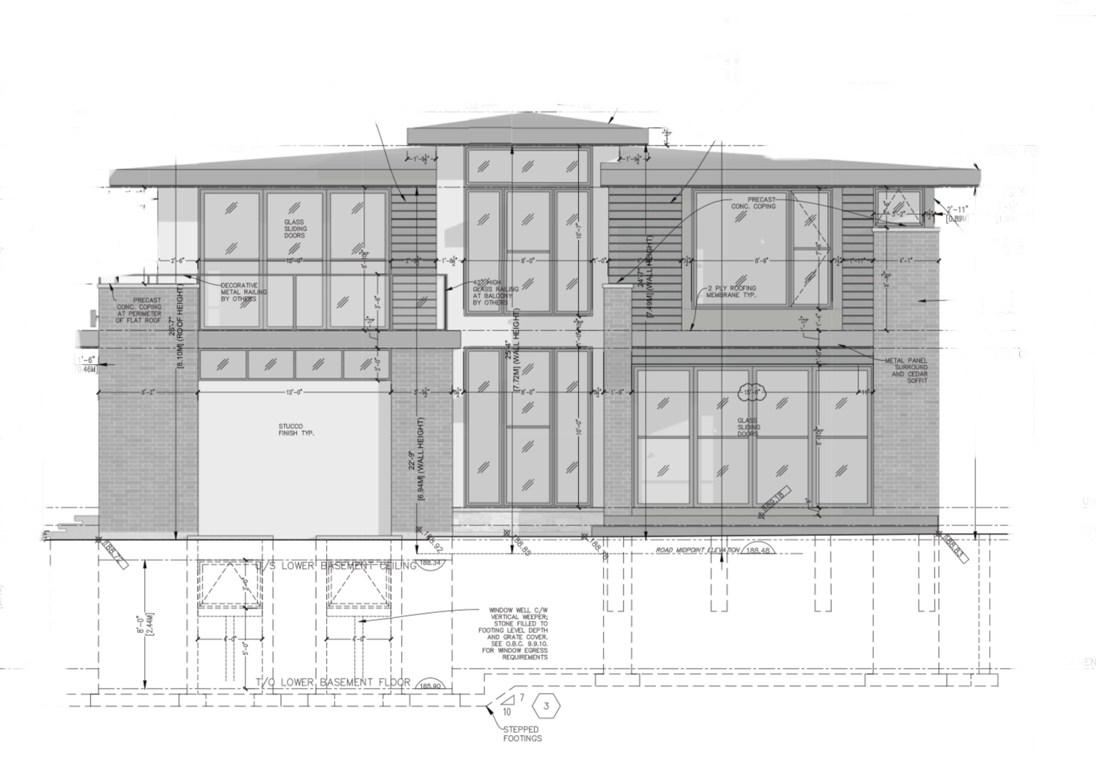
Craven Road - East York
We poured the concrete footing and retaining walls for this project.
Next
Next
Ralston Avenue